kam_B

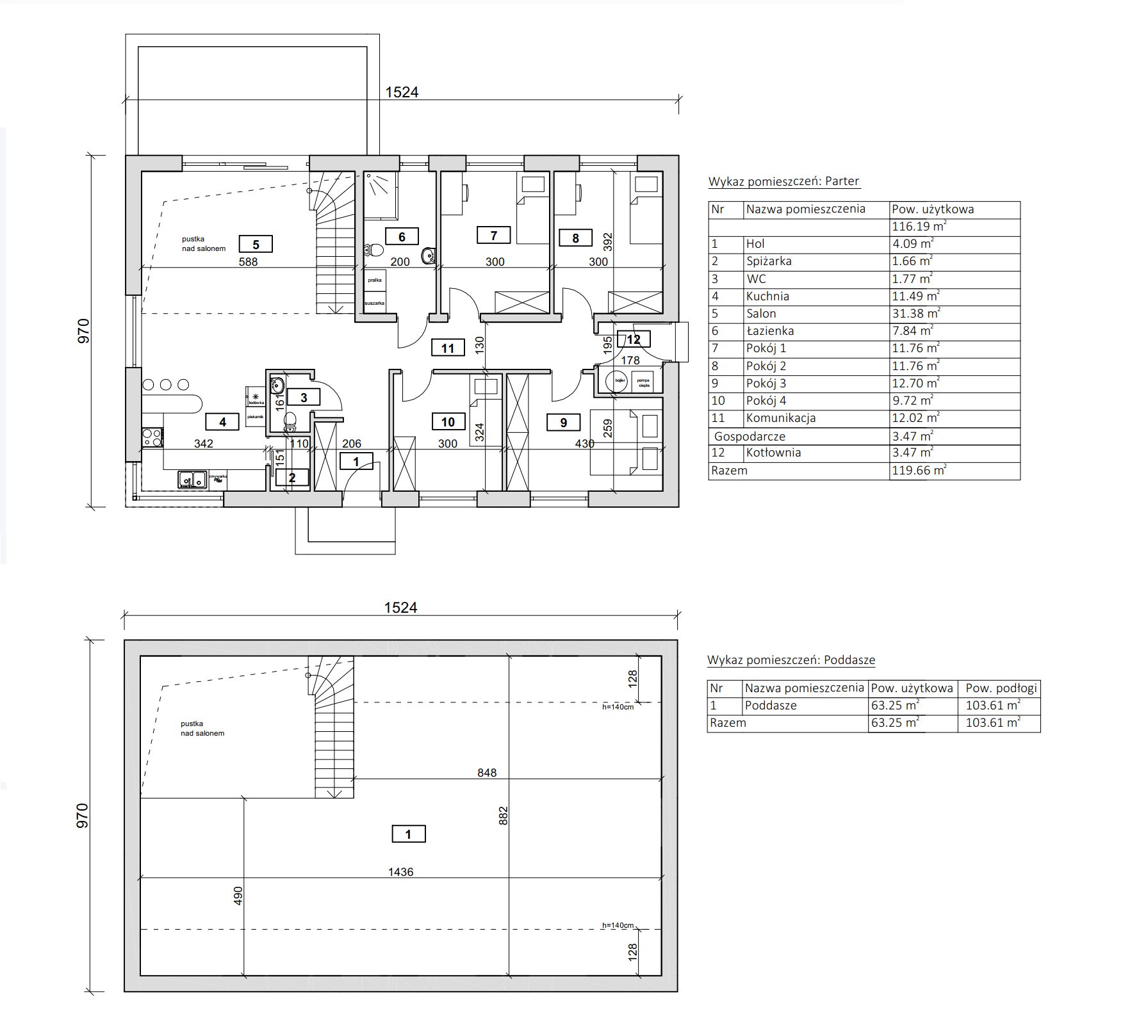
03. Projekt domu 119m2

Projekt domu parterowego z poddaszem do aranżacji (4 sypialnie + salon z antresolą i aneksem kuchennym), 119m2 pow. użytkowej na parterze + 64m2 pow.użytkowej na poddaszu (do aranżacji), z kotłownią na pompę ciepła (z możliwością dostosowania na gaz/pellet). Dach o nachyleniu 35 stopni.

Chcesz budować dom?

Zadzwoń: 518 233 458

Powierzchnia użytkowa:
119,00 m2 (+ poddasze do aranżacji 64,00 m2)
Powierzchnia zabudowy:
147,85 m2
Powierzchnia garażu:
brak
Kąt nachylenia dachu:
35 stopni
Wysokość budynku:
7,45 m
Min. wymiary działki:
23,25 x 17,70 m (szer x dł)

Karta Projektu w PDF do pobrania w Załącznikach (pod galerią) 

  • Zaprojektowany w technologii 3D (możliwy "spacer" po budynku już teraz)
  • Dostępność w ciągu 21 dni
  • Wersja podstawowa (prezentowana) lub w odbiciu lustrzanym
  • Możliwość wprowadzania zmian przed sprzedażą (dodatkowo płatne - wycena i czas realizacji w zależności od zmian)

Cena projektu: 2350 zł (3 egz proj.arch-budowlanego + 3 egz. proj.technicznego: konstr+sanit+elektr)

Fundament:
Ławy fundamentowe
Ściany:
Pustak ceramiczny 25cm + 20cm styropian
Schody:
Półkowe
Strop:
Monolityczny żelbetowy
Więźba:
Tradycyjna drewniana

Pod galerią zdjęć Fotografia 360o budynku

Załączniki

Grupa PROJCAD

Przedsiębiorczy, ambitny, energiczny mgr inżynier budownictwa  + osoby współpracujące posiadające odpowiednie uprawnienia zawodowe i doświadczenia zawodowe.

Nasz zespół to zdobyte doświadczenia przy: adaptacjach projektów, projektach nowych, przebudowy, rozbudowy, załatwianiu pozwoleń na budowę, nadzorze różnych rodzajów robót budowlanych (mieszkaniowe, inżynieryjne), kosztorysowaniu jak i przy projektowaniu budowlanym czy też inżynierskim.

Projekty domów czy adaptacja już gotowych projektów to dla nas za każdym razem nowe doświadczenia.
Jesteśmy w stanie sprostać najbardziej wymagającym.

Więcej
13+ lat w branży
300+ pozwoleń na budowę
20+ autorskich projektów gotowych
3 ekspertów na pokładzie

Wiedza, doświadczenie, pasja

Poznaj ofertę usług naszego
biura inżynieryjnego
  • projektowanie indywidualne (domy, garaże, wiaty gospodarcze, itp.)
  • SPRZEDAŻ PROJEKTÓW naszego autorstwa
  • ADAPTACJA projektów
  • KIEROWNIK BUDOWY -> BTR Tomasz Rogalny, tel. 889296951
  • GEODEZJA -> Kamil Czumałowski, tel. 794905072
  • załatwianie formalności urzędowych (m.in. pozwolenia na budowę)
  • projekty przebudowy istniejących obiektów (mieszkalnych, gospodarczych)
  • inwentaryzacje budowlane
licznik odwiedzin strony

Zgodnie z art. 173 ustawy Prawa Telekomunikacyjnego informujemy, że kontynuując przeglądanie tej strony wyrażasz zgodę na zapisywanie  na Twoim komputerze tzw. plików cookies. Jeżeli nie wyrażasz zgody na ich zapisywanie, zmień ustawienia  swojej przeglądarki internetowej.