kam_A

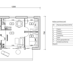
02. Projekt domu 70m2

Projekt małego, parterowego domu, 70m2 pow. użytkowej, ogrzewanie panelami na podczerwień, możliwa zmiana na gaz/pompę ciepła/pellet, tani i prosty w budowie. Dach o nachyleniu 25 stopni.

Chcesz budować dom?

Zadzwoń: 518 233 458

Powierzchnia użytkowa:
70,25 m2
Powierzchnia zabudowy:
90,40 m2
Powierzchnia garażu:
brak
Kąt nachylenia dachu:
25 stopni
Wysokość budynku:
5,56 m
Min. wymiary działki:
19,00 x 15,50 m

Karta Projektu w PDF do pobrania w Załącznikach (pod galerią) 

  • Zaprojektowany w technologii 3D (możliwy "spacer" po budynku już teraz)
  • Dostępność w ciągu 21 dni
  • Wersja podstawowa (prezentowana) lub w odbiciu lustrzanym
  • Możliwość wprowadzania zmian przed sprzedażą (dodatkowo płatne - wycena i czas realizacji w zależności od zmian)

    Cena projektu: 2260 zł (3 egz proj.arch-budowlanego + 3 egz. proj.technicznego: konstr+sanit+elektr)

    Fundament:
    Płyta fundamentowa lub ławy fundamentowe
    Ściany:
    Pustak ceramiczny 25cm
    Schody:
    brak
    Strop:
    Drewniany (pasy dolne dźwigarów dachowych)
    Więźba:
    Drewniana prefabrykowana (dźwigary kratowe)

    Załączniki

    Grupa PROJCAD

    Przedsiębiorczy, ambitny, energiczny mgr inżynier budownictwa  + osoby współpracujące posiadające odpowiednie uprawnienia zawodowe i doświadczenia zawodowe.

    Nasz zespół to zdobyte doświadczenia przy: adaptacjach projektów, projektach nowych, przebudowy, rozbudowy, załatwianiu pozwoleń na budowę, nadzorze różnych rodzajów robót budowlanych (mieszkaniowe, inżynieryjne), kosztorysowaniu jak i przy projektowaniu budowlanym czy też inżynierskim.

    Projekty domów czy adaptacja już gotowych projektów to dla nas za każdym razem nowe doświadczenia.
    Jesteśmy w stanie sprostać najbardziej wymagającym.

    Więcej
    13+ lat w branży
    300+ pozwoleń na budowę
    20+ autorskich projektów gotowych
    3 ekspertów na pokładzie

    Wiedza, doświadczenie, pasja

    Poznaj ofertę usług naszego
    biura inżynieryjnego
    • projektowanie indywidualne (domy, garaże, wiaty gospodarcze, itp.)
    • SPRZEDAŻ PROJEKTÓW naszego autorstwa
    • ADAPTACJA projektów
    • KIEROWNIK BUDOWY -> BTR Tomasz Rogalny, tel. 889296951
    • GEODEZJA -> Kamil Czumałowski, tel. 794905072
    • załatwianie formalności urzędowych (m.in. pozwolenia na budowę)
    • projekty przebudowy istniejących obiektów (mieszkalnych, gospodarczych)
    • inwentaryzacje budowlane
    licznik odwiedzin strony

    Zgodnie z art. 173 ustawy Prawa Telekomunikacyjnego informujemy, że kontynuując przeglądanie tej strony wyrażasz zgodę na zapisywanie  na Twoim komputerze tzw. plików cookies. Jeżeli nie wyrażasz zgody na ich zapisywanie, zmień ustawienia  swojej przeglądarki internetowej.